McNeil Kitchen
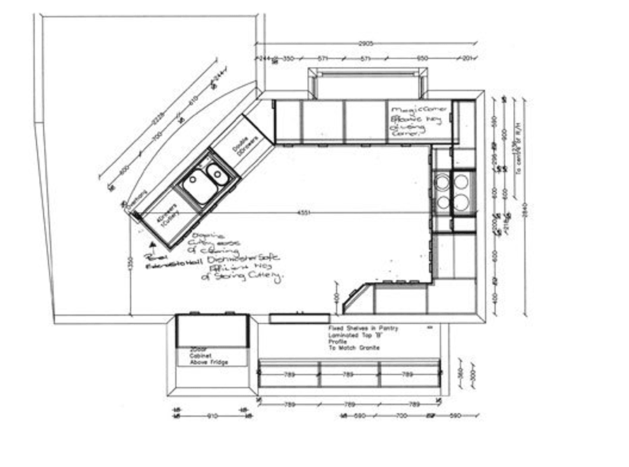
Our clients for this kitchen were a professional couple who purchased this existing home, overlooking Kapiti Island. Large floor to ceiling windows to capture the views are a feature of this charming home. The kitchen was small, limited pantry space, generally poor layout. The brief was to create more benchtop area, and to provide much needed storage areas, thereby creating a kitchen that was more workable for this busy couple. The theme for this kitchen was contemporary in neutral colours, and black. Granite benchtops with accents of Kauri timber in the bartop compliment the magnificent backdrop of Kapiti Island. The sink insert, which was originally housed by the window, has been installed into the island to include the owners in conversation. The raised 'Innovations Black Corrugate' panel back complimented the 'Black Labrador Granite' Benchtops. Due to extensive alterations of this home the end result is a kitchen which now not only is practical, with more workable spaces; it also reflects its surroundings - inside and out.


